Vestergade 19D, 4600 Køge
Udlejer tilbyder 50% i lejerabat frem til d. 1. januar 2028. Super fint og præsentabelt lejemål til kontor, butik eller showroom
Vestergade 19D, 4600 Køge
Udlejer tilbyder 50% i lejerabat frem til d. 1. januar 2028. Super fint og præsentabelt lejemål til kontor, butik eller showroom
Overblik
Økonomi
Om lejemålet
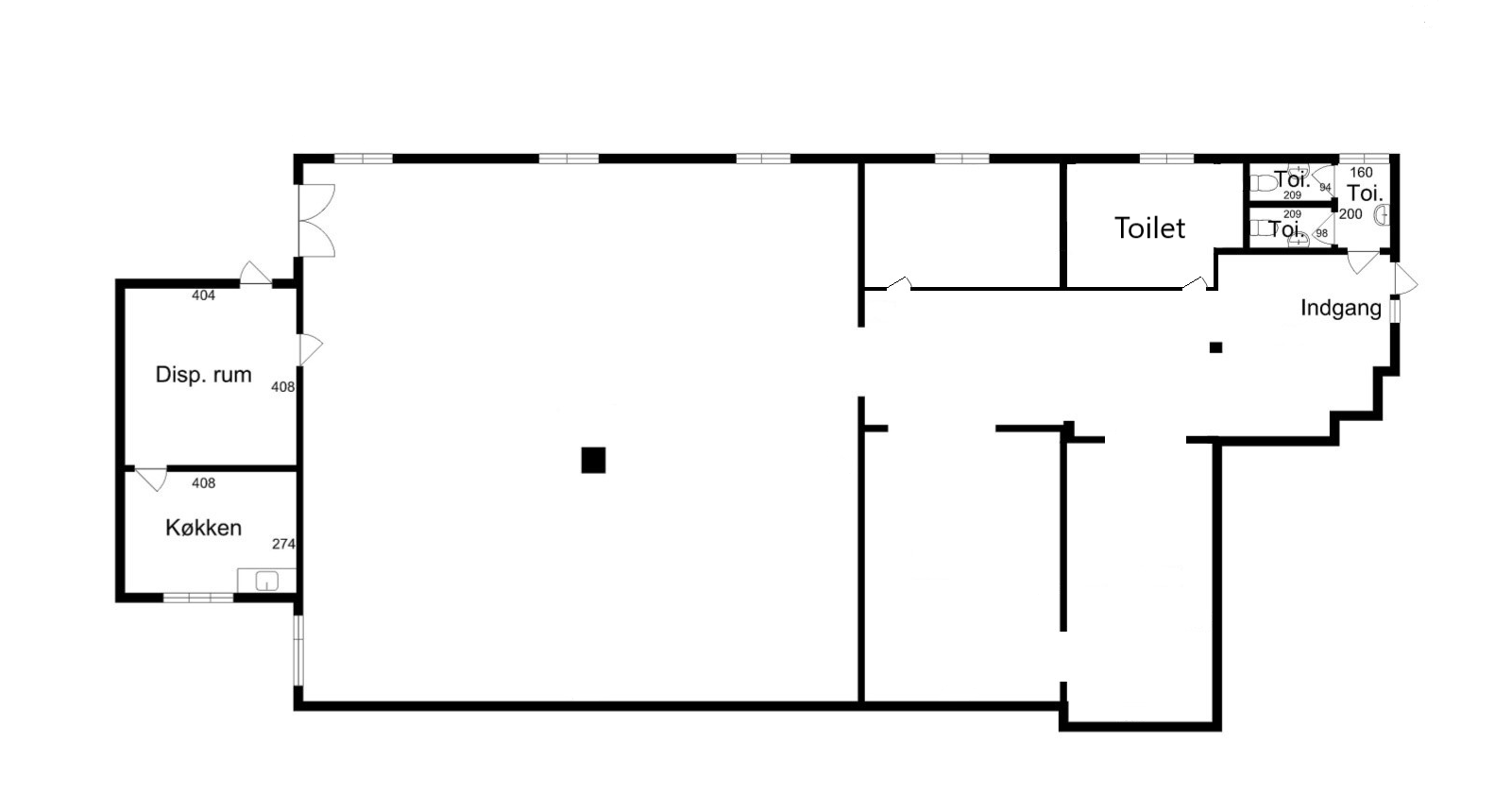
Lejemålet udgør 336 m², og rummer talrige muligheder for kontor, showroom eller lignende. Ved lejemålets entré træder man ind i en fordelingsgang med garderobe, toiletter, et aflukket kontor og 3 gode lokaler. For enden af gangen træder man ind i lejemålets primære lokale. Et stort, åbent og højloftet lokale på ca. 150 m² med stor rummelighed til storrumskontor eller showroom. Herfra kan man tilgå lejemålets køkken og baglokale, med direkte udgang til parkeringspladsen, der også fungerer som vareindlevering.
Udlejer tilbyder 50% i lejerabat frem til d. 1. januar 2028, ved indgåelse af en 5-årig uopsigelig aftale.
Ejendommen
Vestergade 19-21 blev opført i 1850 og udgør samlet 1.582 m², bestående af 7 boliglejemål og 6 erhvervslejemål, herunder 4 caféer og restauranter i stueplan, et stort galleri og en børnelæge på 1. sal.
Ejendommen fremtræder særdeles pæn og vedligeholdt, og med mulighed for privatparkering på et indhegnet område bagved ejendommen.
Hørt om Kastanjegaarden?
Kastanjegaarden er en hyggelig tilbagetrukket gårdhave med indgang direkte fra Vestergade, og med gode parkeringsmuligheder bag Kvickly, hvilket er med til at skabe en hel del forbipasserende, og potentielle gæster/kunder.
Kastanjegaarden byder i forvejen på en mexicansk restaurant (Tacos Locos), ægte italiensk pasta (Gancio) og en sushirestaurant (Hofu), som bidrager til et hyggeligt og stemningsfyldt gårdmiljø i sommerhalvåret.

Opret søgeagent
Opret en søgeagent, så får du en mail hver gang et lokale eller en ejendom, der passer til dine ønsker, annonceres









































