Marielundvej 46C, st. th., 2730 Herlev
God kombination af storrumskontor, mødelokale og lettere lager/depot
Marielundvej 46C, st. th., 2730 Herlev
God kombination af storrumskontor, mødelokale og lettere lager/depot
Overblik
Økonomi
Om lejemålet
Lejemålet er placeret i stueplan i opgang 46C, tæt på ejendommens største parkeringsplads med 8 ladestandere. Lejemålet tilgås via en fælles præsentabelt glasindgangsparti med de øvrige lejere i opgangen.
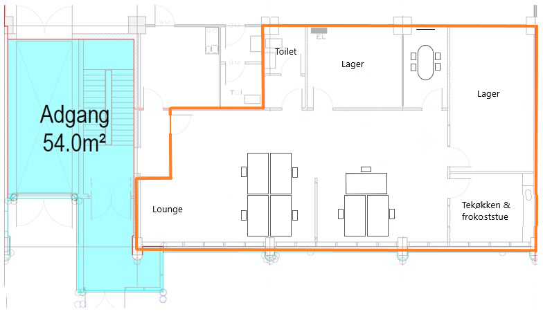
Ved ankomst til lejemålet træder man direkte ind i lejemålets storrumskontor, hvor nuværende lejer har gjort plads til et hyggeligt loungeområde og 7 arbejdsstationer, opdelt i 2 ’afdelinger’ med en skillevæg i delvist glas. Fra storrumskontoret kan man tilgå toilet og garderobe, to lagerlokaler, mødelokale med plads til 4, samt tekøkken og frokoststue. Har man ikke brug for alt lagerpladsen, kan disse tænkes ind som større mødelokaler.
I forbindelse med nuværende lejers indflytning i 2020 blev der lagt nye sortnisterede tæppefliser, og forud for nye lejers indflytning vil belysning blive skiftet til LED. Har kommende lejer ønsker til lejemålets indretning, vil dette blive set positivt på.
Ejendommen
Ejendommen er beliggende centralt i ét af Herlevs mest eftertragtede erhvervskvarterer, kun 900 m. fra Herlev Bymidte og 1,5 km. fra BIG Shopping.
Ejendommen blev bygget i 1966/68 og renoveret i år 2000 med nye alu-facader og flotte glasindgangspartier.
I sommeren 2023 er der installeret 12 ladestandere til brug for ejendommens lejere og gæster.
Med kun 10 km til Rådhuspladsen i indre København, og gode indfaldsveje nordfra, tiltrækker Herlev mange virksomheder fra nær og fjern.

Opret søgeagent
Opret en søgeagent, så får du en mail hver gang et lokale eller en ejendom, der passer til dine ønsker, annonceres



































